2026.04.01
田原市モデルハウス公開中。
理想の暮らしを
体感してください。
MODEL HOUSE 田原モデルハウス紹介
GALLERY ギャラリー
暮らしやすさを、
デザインする
美しさと機能性を兼ね備えたスマートな住まい。吹き抜けから差し込む光が創る開放的な空間、家事をラクにする設備の数々、そして快適な室内環境を実現する全館空調システム。細部まで行き届いた設計と確かな品質で、毎日の暮らしに歓びをもたらします。
RESERVE 来場予約
こんなお悩みはありませんか?
- 最新の住宅設備を見学してみたい
- 注文住宅について相談したい
- 建て替えについて相談したい
- 建売住宅について相談したい
- 土地を探している
- 気軽にモデルハウスの見学だけしたい
- 自分のペースでモデルハウスを見学したい
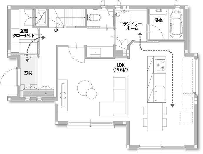
FLOOR PLAN 間取り
-

1階
-

2階
RESERVE 来場予約
こんなお悩みはありませんか?
- 最新の住宅設備を見学してみたい
- 注文住宅について相談したい
- 建て替えについて相談したい
- 建売住宅について相談したい
- 土地を探している
- 気軽にモデルハウスの見学だけしたい
- 自分のペースでモデルハウスを見学したい
FEATURE
トヨタホーム・トヨタホーム&LiFEの
特徴
- 信頼の「トヨタ品質」の家
- 「60年長期保証」で長く安心
- スマートハウス技術で快適&省エネ
- 土地探し・資金計画までサポート
- 地域密着で暮らしを支える
トヨタホームは、トヨタグループのものづくり技術を活かし、高精度かつ高品質な住宅を提供しています。工場生産によるユニット工法を採用しており、天候の影響を受けにくく安定した施工が可能。強靭な鉄骨構造で耐震性・耐久性に優れ、長く安心して住める家づくりを実現します。
トヨタホームは業界トップクラスの60年長期保証を提供。構造や防水の主要部分に対して手厚い保証があり、長期間にわたり快適な住まいを維持できます。定期的な点検やアフターサービスも充実しており、長く安心して暮らせるサポート体制が整っています。
トヨタホームはIoTやHEMS(ホーム・エネルギー・マネジメント・システム)を活用し、エネルギー効率の良いスマートハウスを提供。太陽光発電や蓄電池、EV(電気自動車)との連携で、エコで快適な暮らしを実現します。将来のエネルギー事情を見据えた家づくりが可能です。
「トヨタホーム&LiFE」は、住宅購入をトータルでサポートするサービスを展開。土地探しから住宅ローンの相談、住み替えのサポートまで、家づくりに関わるさまざまな悩みを解決してくれます。初めての家づくりでも安心して進められるのが魅力です。
愛知県を中心に展開する「トヨタホーム&LiFE」は、地域に根ざしたサポートが強み。注文住宅だけでなく、リフォームや賃貸管理、不動産売買まで幅広く対応。ライフステージに合わせた住まいの相談ができ、一生涯のパートナーとして頼れる存在です。
FEATURE
トヨタホーム・トヨタホーム&LiFEの
特徴
- 信頼の「トヨタ品質」の家
- 「60年長期保証」で長く安心
- スマートハウス技術で
快適&省エネ - 土地探し・資金計画までサポート
- 地域密着で暮らしを支える
-
信頼の「トヨタ品質」の家
トヨタホームは、トヨタグループのものづくり技術を活かし、高精度かつ高品質な住宅を提供しています。工場生産によるユニット工法を採用しており、天候の影響を受けにくく安定した施工が可能。強靭な鉄骨構造で耐震性・耐久性に優れ、長く安心して住める家づくりを実現します。 -
「60年長期保証」で長く安心
トヨタホームは業界トップクラスの60年長期保証を提供。構造や防水の主要部分に対して手厚い保証があり、長期間にわたり快適な住まいを維持できます。定期的な点検やアフターサービスも充実しており、長く安心して暮らせるサポート体制が整っています。 -
スマートハウス技術で快適&省エネ
トヨタホームはIoTやHEMS(ホーム・エネルギー・マネジメント・システム)を活用し、エネルギー効率の良いスマートハウスを提供。太陽光発電や蓄電池、EV(電気自動車)との連携で、エコで快適な暮らしを実現します。将来のエネルギー事情を見据えた家づくりが可能です。 -
土地探し・資金計画までサポート
「トヨタホーム&LiFE」は、住宅購入をトータルでサポートするサービスを展開。土地探しから住宅ローンの相談、住み替えのサポートまで、家づくりに関わるさまざまな悩みを解決してくれます。初めての家づくりでも安心して進められるのが魅力です。 -
地域密着で暮らしを支える
愛知県を中心に展開する「トヨタホーム&LiFE」は、地域に根ざしたサポートが強み。注文住宅だけでなく、リフォームや賃貸管理、不動産売買まで幅広く対応。ライフステージに合わせた住まいの相談ができ、一生涯のパートナーとして頼れる存在です。


